项目设计单位:美国W&R国际设计集团境外建筑设计公司
项目地址:中国江苏省吴江市
客户名称:吴江市规划管理局
总用地面积:11.4平方公里
设计时间:2010年
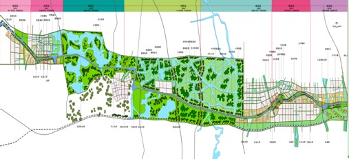
京杭大运河是世界上里程最长、工程最大、最古老的运河之一,京杭运河吴江段处于整个运河的中下游,全线长约42公里。
结合运河航道整治工程实施方案,吴江市规划局2010 年组织编制京杭运河沿岸环境景观规划,对京杭运河吴江段全线的两岸环境景观进行总体的概念规划,并选取局部重点地段进行详细规划设计。W&R 公司提供的概念规划方案在整体上令大运河吴江中心城区延续“一市双城”的双核结构,两处辅城区犹如两大乐器——小三弦和琵琶,共同谱写一曲“吴音之城”,仿佛是流动的音符组成一曲动听的乐章。文化运河、风情运河、生态运河、创意运河,文化为魂,水体为脉,吴江古运河将建设成为集公众休闲、遗产旅游、商业娱乐、水乡田园游憩、文博艺术欣赏体验于一体的风情生态文化廊道。




