相关文章
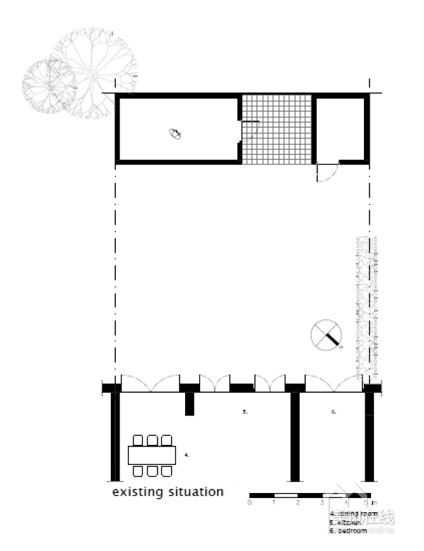
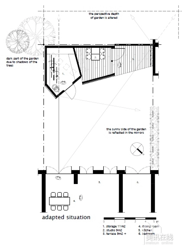
荷兰:CC花园工作室
来源:美讯在线-园林景观网  时间:2012-10-11

 

 




<<首页 <上一页  1  2  3  4  5  下一页>  末页>>  
分享条